РИБОВЪДНА УСТАНОВКА „АКВАФИШ 10000“
Оборудването представлява рециркулационна система от интензивен тип. Производител на инсталацията – компания «Булакватехника».
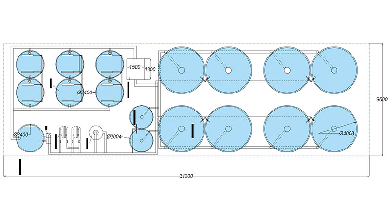
Инсталацията се монтира, в отопляемо помещение и заема площ от 300 м2 (без обслужващите я помещения-складт, WC и др.). За зарибяване на предприятието се използват (малки от 3 грама) и за хранене екструдирани фуражи от местни и чужди производители. Линията е автоматизирана, обслужва се от един човек, като отнема 2-3 часа на ден.
Технически характеристики
| Заемана площ | 300 м2 |
| Максимална производителност на модула за година | 10 000 кг |
| Общ обем на водата | 100,5 м3 |
| Среднечасово енергопотребление | 10,5 кВт/ч |
| Средногодишно потребление на вода | 0,3 м3/час |